
Sold”Sold” Schitterende vrijstaande Villa’s op groot stuk grond in Quesada
Quesada, Alicante
3
2
7 km
35 km
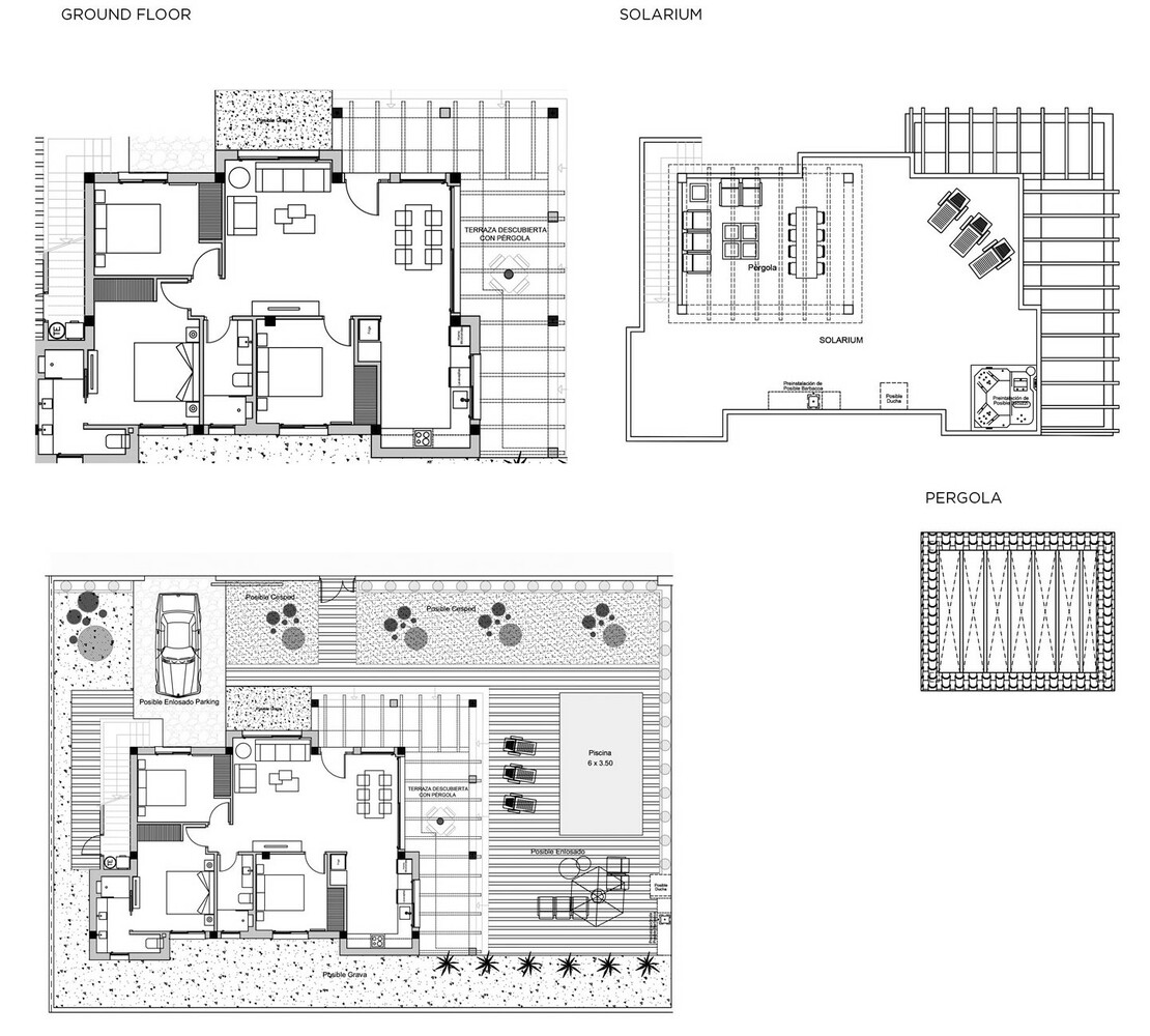
118 m2
Omschrijving
(Dit type woning is uitverkocht)
Quesada is een charmant plaatsje op slechts een paar km van de Middellandse zee. Het is gebouwd rond de 18-hole golfbaan “La Marquesa”, welke een prachtige ligging heeft in een wat diepgelegen dal. Het klimaat is hier zeer gezond met name door de invloed van de zoutmeren. De gemiddelde jaarlijkse temperatuur is 20°C met 320 dagen zon. Het is hier heerlijk genieten met op korte afstand de geweldig mooie stranden van Guardamar op slechts tien minuten afstand.
Deze schitterende vrijstaande Villa’s gebouwd op een plot van 480 m2 hebben 3 slaapkamers en 2 badkamers waarvan 1 en suite. Rondom is een grote mooi aangelegde tuin en er is een zwembad van 3,5 x 6 meter met een buitendouche. Het enorme solarium van 80 m2 is een geweldig zonneterras met mooi uitzicht. De villa’s hebben een eigen oprit met elektronische poort.
Kenmerken woning
- airco, pre-installatie
- vloerverwarming in badkamers
- aerotermia boiler
- solarium 80 m2
- tuinaanleg, erg professioneel inclusief
- erg ruim perceel 480 m2
- prive oprit
